Descripción
- Dirección: Calle 32F #75 C – 27, Laureles Nogal, Medellín
- Tipo de propiedad: Vivienda nueva (en ejecución)
- Salón social: No cuenta con salón social
- Cantidad de apartamentos por piso: 3 apartamentos
- Área construida: 78.69 m²
- Apartamentos 303 , 503 y 703
- Opciones de financiamiento: Disponibles (consultar condiciones)
Breve descripción del proyecto y ubicación.
Proyecto de Vivienda: District 76
Exclusividad y confort en el corazón de Laureles – Medellín
District 76 es un proyecto residencial de acabados de lujo, ubicado en el tradicional y vibrante barrio Laureles Nogal, sobre la Calle 32F #75C – 27, a pocos pasos de importantes vías como la Avenida 33 y cerca de lugares clave como la Estación de Servicio Los Almendros, Supermercado La Vaquita, Bancolombia Laureles y el sector de Bulerías.
El edificio cuenta con 9 pisos de apartamentos, distribuidos en 3 unidades por nivel, para un total de 26 apartamentos. Cada unidad ha sido diseñada para ofrecer una excelente distribución y máximo aprovechamiento del espacio, con opciones de 1 o 2 alcobas, 2 baños o baño completo con baño social, cocinas abiertas tipo isla (según tipología), y balcones incluidos dentro del área total construida.
Acabados de lujo:
- Pisos en cerámica
- Mesones en Quartzone blanco polar
- Carpintería en MDF de puertas, clósets, vestier, cocina y muebles de baño (suministrado por Madecentro)
- Griferías monocontrol negras para lavamanos y cocina
- Accesorios de baño modernos en acero inoxidable negro mate
- Cubierta y extractor marca HACEB o similar
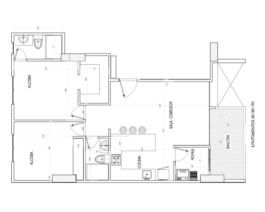
Apartamento
Este apartamento de 2 alcobas y 2 baños ofrece una distribución moderna, funcional y pensada para brindar confort en cada espacio:
Área total construida: 77.73 m²
Área de balcón:8.98 m² (incluida en el área total)
Zonas Privadas:
- 2 alcobas amplias, con excelente iluminación natural.
- La alcoba principal cuenta con baño privado.
- Dos baños adicionales para mayor comodidad de los residentes y visitantes.
Zona Social:
- Sala-comedor de concepto abierto, ideal para compartir en familia o con amigos.
- Conectada directamente al balcón privado, que brinda ventilación cruzada y un espacio para relajarse al aire libre.
Cocina:
- Diseño moderno y abierto, con isla central que funciona como comedor auxiliar.
- Zona de ropas independiente, contigua a la cocina, para mayor funcionalidad.
Este diseño destaca por su eficiencia espacial, excelente iluminación, ventilación y acabados de lujo que garantizan una experiencia de vivienda superior.






